Maître d'ouvrage : Auray Quiberon Terre Atlantique
Équipe :
Città urbanisme&paysage mandataire
Maurer & Gilbert Architectes
Surface : 1 800m2
Montant : 1,2M€
Programme :
Programme de 45 logements intermédiaires + nouvel EHPAD de 80 lits + parc public central
Livraison : 2025
Détail du projet :
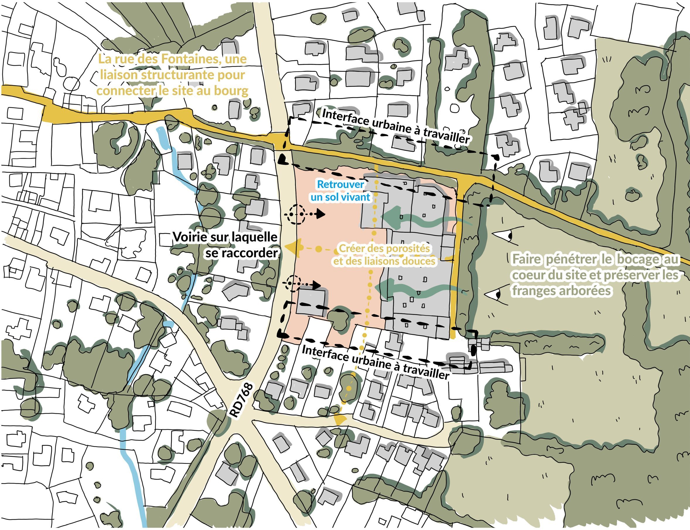
Le Super U de Pluvigner va déménager prochainement dans la zone «Terr’Océan», en entrée de ville sud du bourg. Les travaux ont démarrés en juin 2024 et se poursuivent actuellement sur site.
Ce déménagement libère une large emprise foncière et offre l’opportunité de penser un projet de renouvellement urbain sur l’ancien site du supermarché, pour y développer une opération mixte, comprenant un nouvel EHPAD, une offre de logements diversifiée et accessible et un parc paysager.
A la lumière des besoins exprimés par l’AQTA et la ville, les principes directeurs du plan guide sont les suivants :
> Aménagement du coeur d’ilot en parc public paysager, accessibles aux résidents de l’EHPAD et aux habitants, qui propose de nouveaux usages et une rétention des eaux pluviales. Un espace de rencontre intergénérationnel pour le quartier.
> Implantation du nouvel EHPAD compact (R+2 / 80 lits) en front de voie pour structurer la rue Abbé le Maréchal.
> Construction d’une opération de 45 logements intermédiaires (R+1/R+2) en fond de parcelle, proposant des logements traversant et orientés sud avec espaces extérieurs pour chaque unité d’habitation (Rez-de-jardin, terrasse, loggia).
> Un principe de mutualisation de la majorité des stationnements privatifs est proposé dans un parking en élévation, en retrait des tissus existants.
> Une réserve foncière au sud qui permettrait à terme de construire une opération de 12 logements intermédiaires.
> Rationalisation des voies d’accès au minimum et constitution d’un réseau de cheminements doux connectés aux chemins existants




